Low-Density Residential Development with Modern Villas
This project includes the full-cycle design of a low-rise residential community comprising modern private villas, landscaping, and shared public infrastructure.
The goal was to create a premium living environment that combines visual harmony, spatial comfort, and long-term operational efficiency.

Scope of Work:
Development of site masterplan, including internal roadways, plots, sidewalks, landscape zones, and public amenities
Design of several villa typologies with varying areas and layouts, tailored to different family sizes and preferences
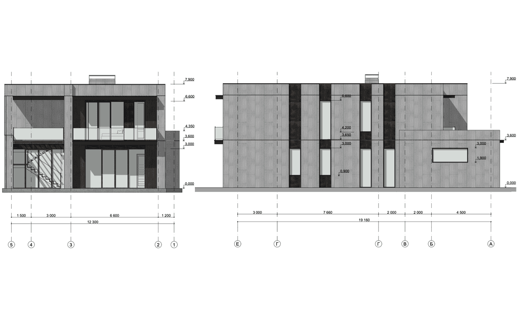
Architectural design of each building, including façades, materials, and detailing consistent with a unified village identity
Interior design packages for living zones, kitchens, bathrooms, and storage — ensuring natural light, functionality, and premium finishing
Outdoor living integration: terraces, pools, playgrounds, green buffers, and visual privacy solutions
Site logistics planning: driveways, parking areas, and service access
Preparation of technical documentation and drawings for construction execution

The result is a refined, flexible residential cluster combining architecture, comfort, and sustainability — ideal for long-term private living in a natural setting.




