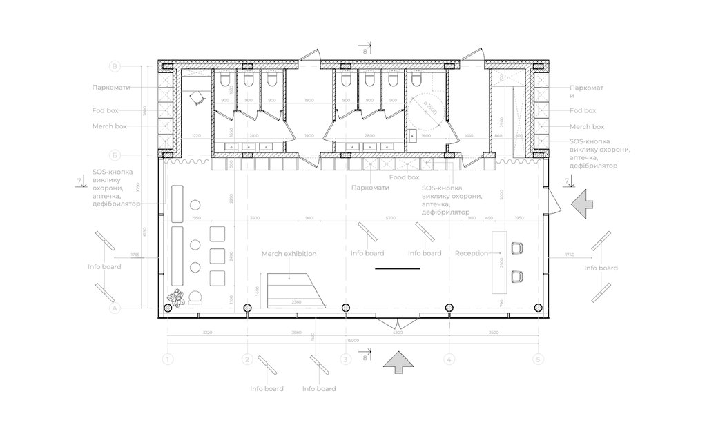
Real Estate Sales Office
The Real Estate Sales Office is a modern space designed for meetings with future owners and investors. Here, you can explore development plans, get detailed consultations, and finalize deals. With its panoramic glass walls, the pavilion remains bright and open, while the surrounding greenery makes the visit especially pleasant.






