Villa’s Architecture & Interior Design Concept
This project involved the complete architectural and interior design development of a modern private villa. The design focused on harmonizing spatial efficiency, aesthetic clarity, and premium materiality.

Key Deliverables:
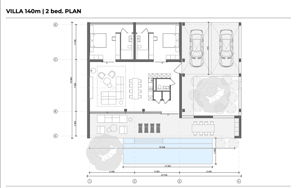
Architectural planning of a single-family villa (approx. 140–380 m²), including layout, façade, and exterior landscape integration
Interior design of living areas, bedrooms, bathrooms, and kitchens with a consistent use of natural materials (wood veneer, microcement, travertine-like ceramics)
Development of outdoor living spaces, including terraces, pools, firepit zones, and shaded lounge areas
Material palette coordination between interior and exterior to ensure seamless spatial continuity
Functional zoning with integrated engineering niches, technical spaces, and built-in storage

The result is a refined architectural product tailored to both private relaxation and representative living — delivering comfort, sustainability, and contemporary style.








